4 Ateliers

Potsdam-Krampnitz, 2013-14

Im Bauarchiv Potsdam haben wir die Unterlagen über die frühere DDR Trikotfabrik "Ernst Lück" gefunden. Eine Fabrikation, die in den 50er Jahren gegründet und sukzessive durch Lager- Sozialbauten erweitert wurde. Der Standort am See, umgeben von Einfamilienhäusern, ist ungewöhnlich und vermutlich nur mit der Nähe zur früheren DDR Kaserne in Krampnitz zu erklären. Den Kern bildete das Fabrikgebäude das sich durch eine Rampe vom sich leicht absenkenden Gelände abhebt.

In den 2010er Jahren hatte ein Investor die Anlage gekauft und wollte diese abreissen, um mehrere Einfamilienhäuser zu errichten. Dies wurde nicht genehmigt, damit war der Weg vorgezeichnet für den erneuten Verkauf und die Umnutzung der Fabrikgebäude, was ab dem Jahr 2013 erfolgte. Wegen unseres Romaufenthalts (2012) wurde das Projekt Umnutzung des Fabrikgeäudes in den Phasen (LP 1-4) in Kooperation mit dem Büro Brandlhuber+ Emde Burlon durchgeführt, das die Fassaden im Dialog mit den Bauherren entwickelt hat (s. Projekt Copy Paste von Brandlhuber+ Emde Burlon).

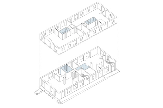
Da sich die Bauherren zwar auf die Anzahl der Einheiten, nicht aber auf die Nutzung und Nutzer festlegen wollten, wurde von BARarchitekten ein Szenarioplan entwickelt, bestehend aus einem Bad-/Küchenkern, sowie optionalen Räumen (cosy corners), die zu einem späteren Zeitpunkt ergänzt werden können. Bis zu diesem Zeitpunkt wird die elektrische Anbindung unter im Estrich eingelassenen Metalldeckeln vorgehalten. Dadurch kann sich in Zukunft der Loft-Space in eine gemeinschaftliche Wohnform verwandeln.

Text

deutsch

< / >